Stafford Close, London, N14
£1,850 PCM
2
30 Photos
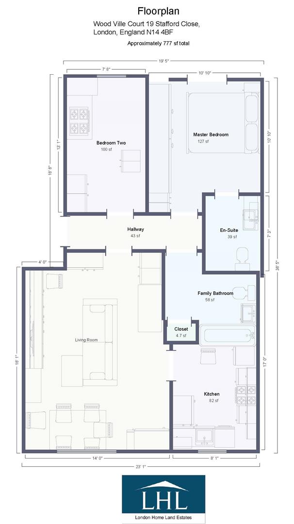
LHL Estates, as "Vendors chosen Sole Agents," are delighted to present this modern two-bedroom first-floor flat, built in 2003, within a gated community situated in a cul-de-sac of Stafford Close and a stone's throw from Oakwood tube station (Picadilly Line Zone 5). This contemporary apartment offers one double bedroom with en-suite and one single bedroom, a modern family bathroom, a modern kitchen, and a laminated floor. More details are as follows: Entrance through a main door: Hallway: 13 x 3.5 ft. Laminated Floor, Gas radiator, phone entry system, Electricity Consumer unit Reception Room: 19 x 14 ft (Approx).Double-glazed window to the rear, laminated floor, gas radiator, and a cable point. Kitchen 10.5 x 8 ft. Comprising a range of wall and base units, four hob gas burner, electric oven, extractor hood, stainless steel sink with mixer tap, plumbing for washing machine and space for fridge and three power points. Bedroom One 13 x 11 ft – (En-suite) 7.6 x 5.5 ft Laminated floor. Romeo and Juliet's balcony has French double-glazed doors and power points. The en-suite comprises a cubicle shower with a power shower, a ceramic sink with hot and cold taps, and tiled floors. Bedroom Two 13 x 7 ft. Double-glazed window to the front aspect, laminated floors, and PowerPoint. Family Bathroom 8.11 x 8.9 > 7.5 ft. 7.5 ft. Comprising a three-piece suite, partly tiled walls, a mixer tap in the sink, a vanity cupboard underneath the sink, and a mixer tap in the bathtub with a shower attachment. Low flush WC, utility cupboard.
Summary
LHL Estates, as "Vendors chosen Sole Agents," are delighted to present this modern two-bedroom first-floor flat, built in 2003, within a gated community situated in a cul-de-sac of Stafford Close and a stone's throw from Oakwood tube station (Picadilly Line Zone 5). This contemporary apartment offers one double bedroom with en-suite and one single bedroom, a modern family bathroom, a modern kitchen, and a laminated floor. More details are as follows: Entrance through a main door: Hallway: 13 x 3.5 ft. Laminated Floor, Gas radiator, phone entry system, Electricity Consumer unit Reception Room: 19 x 14 ft (Approx).Double-glazed window to the rear, laminated floor, gas radiator, and a cable point. Kitchen 10.5 x 8 ft. Comprising a range of wall and base units, four hob gas burner, electric oven, extractor hood, stainless steel sink with mixer tap, plumbing for washing machine and space for fridge and three power points. Bedroom One 13 x 11 ft – (En-suite) 7.6 x 5.5 ft Laminated floor. Romeo and Juliet's balcony has French double-glazed doors and power points. The en-suite comprises a cubicle shower with a power shower, a ceramic sink with hot and cold taps, and tiled floors. Bedroom Two 13 x 7 ft. Double-glazed window to the front aspect, laminated floors, and PowerPoint. Family Bathroom 8.11 x 8.9 > 7.5 ft. 7.5 ft. Comprising a three-piece suite, partly tiled walls, a mixer tap in the sink, a vanity cupboard underneath the sink, and a mixer tap in the bathtub with a shower attachment. Low flush WC, utility cupboard.Full Description
Viewing/Disclaimer
Please contact us on 020 4574 9696 if you wish to arrange a viewing appointment for this property or require further information.Energy Performance Certificate
Click here to view the Energy Efficiency Rating and Environmental Impact Rating for this property.
LHL Estates - WC2N endeavour to maintain accurate depictions of properties in Virtual Tours, Floor Plans and descriptions, however, these are intended only as a guide and purchasers must satisfy themselves by personal inspection.

